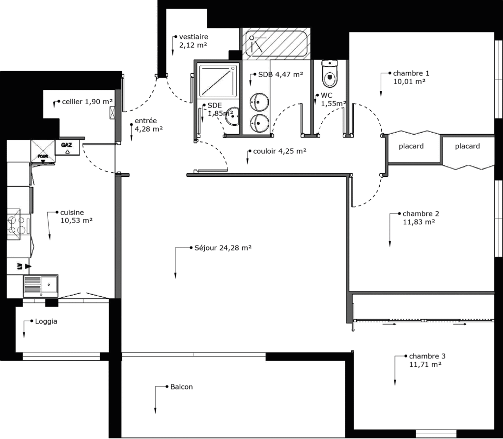
Tout commence ici. Avant de tracer la moindre ligne, j’analyse les volumes bruts et les contraintes techniques. C’est le moment où je m’imprègne de l’espace pour comprendre son potentiel caché et comment il pourra accueillir votre histoire.
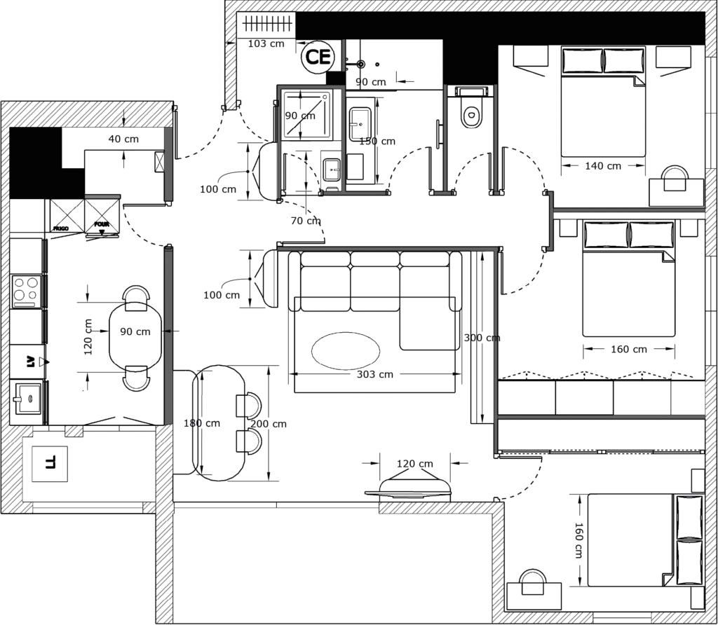
Ici, nous définissons la fonctionnalité. Sur ce plan coté, chaque centimètre est optimisé. Nous avons retravaillé les circulations, notamment l’espace cuisine et le salon, en veillant à respecter des largeurs de passage fluides (ex : 90 cm, 100 cm). L’objectif est de créer une base technique irréprochable pour la vie quotidienne.
Le plan technique prend vie. J’introduis ici les textures — le sol en parquet chaleureux, les zones carrelées — pour vous aider à visualiser non plus seulement des murs, mais une ambiance. On commence à projeter la chaleur du foyer dans l’agencement global.
Cette vue en « maison de poupée » permet de comprendre la cohérence globale de l’appartement. On visualise l’équilibre entre les zones nuit et les zones jour, et comment la lumière traversera l’ensemble de l’espace restructuré.
Nous vérifions ici les lignes de regard. Cette coupe permet d’ajuster le dialogue entre l’entrée, marquée par cette porte arche vitrée, et le séjour. C’est une vérification technique pour s’assurer que l’architecture intérieure reste légère et fluide.
C’est l’étape de l’émotion. Nous sélectionnons les matériaux qui toucheront vos sens : un papier peint panoramique aux motifs végétaux pour la profondeur, associé à des tasseaux en chêne naturel pour la chaleur et l’acoustique. C’est la signature esthétique du projet.
Voici votre future vue. Le rendu réaliste intègre la lumière naturelle et l’ouverture vers l’extérieur. On valide ici l’ambiance lumineuse et la sensation d’espace générée par l’agencement.
Le mobilier sculpte l’espace. Pour ce projet, nous avons opté pour des formes organiques comme la table « Lucia » en microciment et la table basse « Daroka » en bois blanc, apportant de la douceur et contrastant avec les lignes architecturales.
Le beau doit être confortable. Le choix s’est porté sur un canapé d’angle « Biarritz » en lin écru pour son aspect enveloppant, éclairé par la suspension poétique «Screen».
Notez le détail technique : un mur en tasseaux de chêne conçu pour camoufler une porte sous tenture, rendant l’accès à la chambre invisible.
Retour à la précision technique pour la réalisation. Ce plan d’élévation de la bibliothèque en placoplatre (7 cm d’épaisseur) est le guide pour l’artisan. Chaque niche est calibrée pour vos objets (0,55 m, 0,78 m) et intègre des portes coulissantes sur rails pour une finition épurée et fonctionnelle.
Avant d’accueillir vos objets d’art, la bibliothèque n’est qu’une ossature précise. Ici, nous veillons au respect strict des cotes définies sur le plan d’élévation. L’utilisation de placoplatre de 7 cm d’épaisseur n’est pas un hasard : c’est elle qui donnera cette impression de maçonnerie solide et pérenne, tout en permettant l’intégration parfaite des rails pour les futures portes coulissantes.
Pour obtenir cet effet de mur continu en bois, la préparation est millimétrée. Nous installons ici un bâti pour porte « fleur de cloison ». C’est une étape technique ingrate mais cruciale: un décalage empêcherait l’alignement parfait des tasseaux de chêne qui viendront par la suite camoufler l’accès à la chambre. La simplicité visuelle demande souvent une grande complexité technique.
C’est l’instant où le plan 2D prend vie. La froideur du chantier s’efface devant la chaleur du chêne naturel et la profondeur du décor panoramique noir et blanc. Nous soignons particulièrement la jonction entre ces deux univers pour créer ce contraste graphique et sensible qui fait l’identité du salon Les Antilles.
Au-delà de l’image, le bien-être.
On pense souvent qu’il faut choisir entre une maison « magazine » et une maison « à vivre ». Ma vision chez CBagur Design est exactement l’inverse : pour moi, un espace n’est véritablement beau que s’il est fluide, évident et agréable au quotidien.
Je ne cherche pas seulement à créer une esthétique qui flatte l’œil, mais à concevoir une fonctionnalité qui apaise l’esprit.
Allier le beau à l’utile, c’est faire en sorte que chaque rangement soit à la bonne place pour libérer l’espace visuel, que la lumière circule pour agrandir la pièce, et que les matériaux soient aussi agréables à toucher qu’à regarder.
Mon architecture d’intérieur est une réponse technique à vos besoins, habillée d’une émotion qui vous ressemble.
CBagur Design vous accompagne dans vos projets d’aménagement intérieur, de Renovation ou de décoration sur Aix-en-Provence, Marseille et la région PACA. Mon rôle est de vous guider à chaque étape, en écoutant vos besoins pour imaginer et concevoir des espaces harmonieux adaptés votre mode de vie.
N’hésitez pas à me contacter pour échanger autour de votre projet.
CBagur Design vous accompagne dans vos projets d’aménagement intérieur, de Renovation ou de décoration sur Aix-en-Provence, Marseille et la région PACA.
CBagur Design, Aix-en-Provence, 2025 © Ce site rayonne grâce à Media Solar